Mostrare di più sul tema Descrizione
Descrizione
Appartamento in vendita in Via Monti Aurunci a Pescara
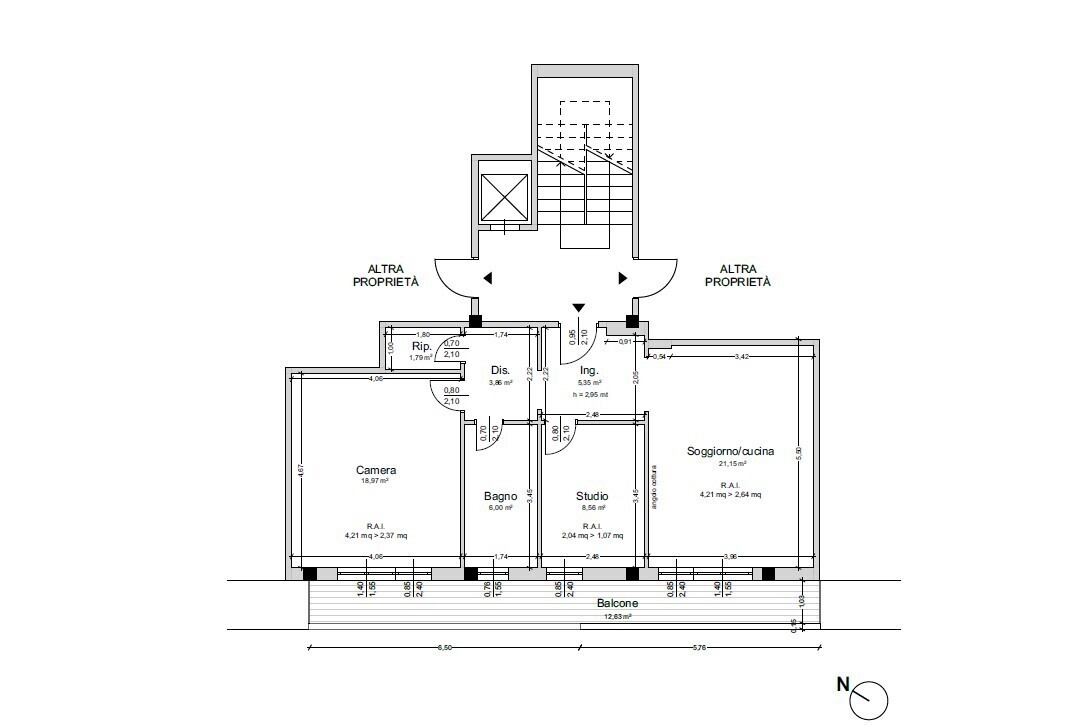
In Via Monti Aurunci 3, a Pescara proponiamo in vendita in collaborazione con la REXER.IT un appartamento ristrutturato, situato al terzo piano di una palazzina civile di quattro piani servita da ascensore. L’edificio, realizzato intorno al 1980, è stato oggetto di interventi di ristrutturazione esterna. L’immobile ha una superficie di circa 83 mq ed è composto da ingresso, soggiorno-pranzo con cucina a vista, una camera da letto matrimoniale, una camera/studio, un vano ad uso ripostiglio e un bagno. La distribuzione interna risulta funzionale e ben organizzata. L’appartamento è dotato di un ampio balcone, accessibile sia dal soggiorno-pranzo sia dalla camera matrimoniale. Le dotazioni includono infissi in doppio vetro, porta blindata, aria condizionata e riscaldamento centralizzato. Le finiture sono in ceramica e lo stato manutentivo è ottimo. Non sono presenti garage né servizio di portineria. Le spese condominiali ammontano a circa 100 euro mensili. Classe energetica E. I dati e le immagini si intendono corretti ma non garantiti. La presente non costituisce in nessun caso documento contrattuale. Per maggiori informazioni e/o per prendere visione oppure per trovare la soluzione che meglio sia adatta alle vostre esigenze contattateci savinirealestate@gmail.com o Visita i nostri siti: http://www.savinirealestate.com https://dimorama.it/aste/cagliari segui i nostri canali Facebook, YouTube e Instagram Valuta il tuo immobile su https://savinirealestate.info Sede di Pescara – Strada Colle Di Mezzo 3/3 – 65125 Uff. 085 8893586 Cell. 329 6708468 Sede di Cagliari – P.zza G. Garibaldi, 18 – 09128 Uff. 070 2056963 Cell. 392 9115548 Sede di Cagliari – DIMORAMA – P.zza G. Garibaldi, 18 – 09128 Uff. 070 7598682 Cell. 346 6419784
In Via Monti Aurunci 3, a Pescara proponiamo in vendita in collaborazione con la REXER.IT un appartamento ristrutturato, situato al terzo piano di una palazzina civile di quattro piani servita da ascensore. L’edificio, realizzato intorno al 1980, è stato oggetto di interventi di ristrutturazione esterna. L’immobile ha una superficie di circa 83 mq ed è composto da ingresso, soggiorno-pranzo con cucina a vista, una camera da letto matrimoniale, una camera/studio, un vano ad uso ripostiglio e un bagno. La distribuzione interna risulta funzionale e ben organizzata. L’appartamento è dotato di un ampio balcone, accessibile sia dal soggiorno-pranzo sia dalla camera matrimoniale. Le dotazioni includono infissi in doppio vetro, porta blindata, aria condizionata e riscaldamento centralizzato. Le finiture sono in ceramica e lo stato manutentivo è ottimo. Non sono presenti garage né servizio di portineria. Le spese condominiali ammontano a circa 100 euro mensili. Classe energetica E. I dati e le immagini si intendono corretti ma non garantiti. La presente non costituisce in nessun caso documento contrattuale. Per maggiori informazioni e/o per prendere visione oppure per trovare la soluzione che meglio sia adatta alle vostre esigenze contattateci savinirealestate@gmail.com o Visita i nostri siti: http://www.savinirealestate.com https://dimorama.it/aste/cagliari segui i nostri canali Facebook, YouTube e Instagram Valuta il tuo immobile su https://savinirealestate.info Sede di Pescara – Strada Colle Di Mezzo 3/3 – 65125 Uff. 085 8893586 Cell. 329 6708468 Sede di Cagliari – P.zza G. Garibaldi, 18 – 09128 Uff. 070 2056963 Cell. 392 9115548 Sede di Cagliari – DIMORAMA – P.zza G. Garibaldi, 18 – 09128 Uff. 070 7598682 Cell. 346 6419784
Mostrare di più sul tema Descrizione
Certificazione energetica
- Genere
- Residenziale
- Classe energetica
- E